Technischer Cube in der HLS-Planung als zentrales Technikherz der Kita Wachtberg 

Der Neubau der Kindertagesstätte in Wachtberg zeigt, wie technische Gebäudeausrüstung von Anfang an smart geplant werden kann. Wir von TG-Plan übernehmen die HLS-Planung für die Bereiche Heizung, Sanitär und Entwässerung und sorgen somit dafür, dass das Gebäude technisch einwandfrei läuft. Die Architektur stammt vom Architekturbüro DBD aus Bornheim.
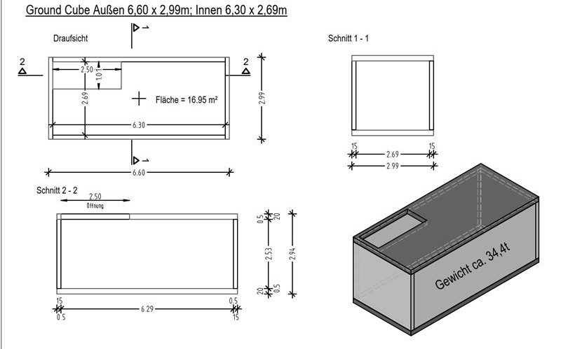
Ein besonderes Highlight ist der Technische Cube in der HLS-Planung: Hier laufen alle zentralen Anlagen der Versorgungstechnik zusammen – von Wärmepumpen über Lüftungen bis hin zu Speicher- und Verteilungssystemen. Auch diesen Technischen Cube hat das Architekturbüro DBD entworfen.

Was ist ein Cube?

In der Architektur bezeichnet man als „Cube” einen kompakten, meist würfelförmigen Baukörper, der Technikräume aufnimmt. In unserer KiTa bündelt er die zentralen HLS-Anlagen und ersetzt den klassischen Kellertechnikraum. Optisch wirkt er schlicht, funktional und meist fensterlos. Der Cube kann angebaut, freistehend oder ins Gebäude integriert sein.

Ein Technischer Cube in der HLS-Planung bringt viele Vorteile mit sich: kurze Leitungswege, einfache Wartung und eine klare Trennung von Technik- und Aufenthaltsbereichen. Da viele Komponenten früh definiert und teilweise vorgefertigt werden, läuft die Planung effizienter. Außerdem treten Probleme mit Schall, Feuchte oder Brandschutz seltener auf. Besonders wirtschaftlich ist der Cube, wenn kein Keller gebaut wird, wie bei diesem Projekt. Denn Kellertechnikräume beanspruchen teure Fläche und erfordern aufwendige Abdichtungen.

Kurz gesagt: Der Cube ist funktional, wartungsfreundlich und kosteneffizient.

Technik gebündelt: So arbeitet der Cube.

Im Cube bündeln wir unter anderem:

– Heizungsverteiler und Regelungskomponenten.

– Sanitär-Übergabepunkte und -Verteilungen.

– Mess-, Steuer- und Regeltechnik.

Die Leitungen verlaufen direkt durch den Cube. Ein zusätzlicher Übergabeschacht ist nicht nötig. Das spart Platz, erleichtert die Wartung und ermöglicht spätere Anpassungen. Abgestimmte Regelungen sichern einen energieeffizienten Betrieb. Gleichzeitig trennt der Cube Aufenthalts- und Technikbereiche sauber voneinander.

Somit bildet der Technische Cube in der HLS-Planung das Herzstück der Versorgungstechnik und sorgt für eine klare, effiziente Struktur im gesamten Gebäude.

Ganzheitlicher HLS-Ansatz

TG-Plan plant nicht nur die Technik, sondern entwickelt ein Konzept für das gesamte Gebäude. Dabei stehen Komfort, Hygiene, Energieeffizienz und Betriebssicherheit gleichwertig im Fokus. Durch unsere frühe Einbindung integriert sich die HLS-Technik optimal in die Gebäudestruktur – mit klar definierten Technikflächen, wirtschaftlichen Leitungstrassen und einem nachhaltigen Betriebskonzept.

Blick nach vorne

In den nächsten Planungsschritten vertiefen wir die Grundlagen für die Ausführung der HLS-Anlagen. Der Cube bleibt das Herzstück der Technik und schafft die besten Voraussetzungen für einen langlebigen, effizienten und nutzerfreundlichen Betrieb der KiTa. TG-Plan begleitet das Projekt weiterhin mit dem Ziel, eine moderne und praxisnahe HLS-Lösung zu realisieren.